Pronájem obchodu 344 m², Jižní spojka, Praha
145 000 Kč za měsíc
G
+ poplatky za energie
Popis nemovitosti
Nájemné: 145.000 Kč + DPH
Kauce: ve výši 2 měsíčních nájmů
Odměna RE/MAX: jeden měsíční nájem + DPH
Nově k pronájmu nabízíme moderní třípodlažní komerční objekt nacházející se ve velmi frekventované lokalitě Prahy 10 – Záběhlice, přímo u Jižní spojky. Součástí je také rozlehlý pozemek o výměře cca 1.000 m², který je k dispozici jako zpevněná plocha. Pozemek lze využít k parkování až cca 30 vozidel nebo jako ostatní manipulační či skladovací plochu. Ideální řešení pro parkování zákazníků i zaměstnanců, případně pro logistické či provozní zázemí ke komerční nemovitosti.
Díky skvělé poloze je budova výborně viditelná z hlavního dopravního tahu, má snadný nájezd i výjezd a představuje ideální místo pro jakýkoliv komerční záměr, který potřebuje být na očích a zároveň mít bezproblémovou dopravní dostupnost.
Objekt byl zkolaudován v roce 2022, je zrekonstruovaný, moderní, udržovaný a ve velmi dobrém technickém stavu. Celková užitná plocha budovy činí 344 m² a je rozdělena do tří podlaží. Součástí pronájmu je také rozsáhlá venkovní plocha a parkoviště o velikosti přibližně 1.100 m² s možností parkování až pro 30 vozidel, což je v této části Prahy výrazným benefitem jak pro zaměstnance, tak pro zákazníky.
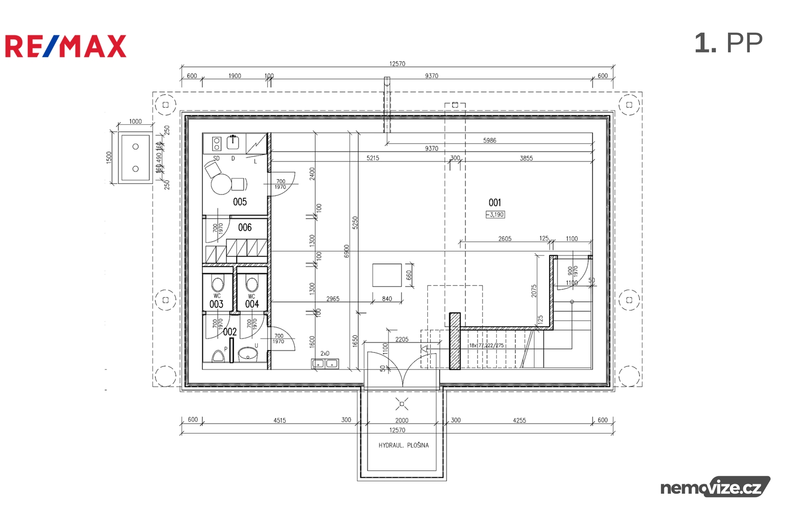
V podzemním podlaží o výměře 102 m² se aktuálně nachází servisní a skladové zázemí. Toto podlaží je přístupné vnitřním schodištěm a výtahem, který propojuje podzemní podlaží s přízemím, a zároveň je zde možnost zásobování zvenku pomocí nákladní hydraulické plošiny.
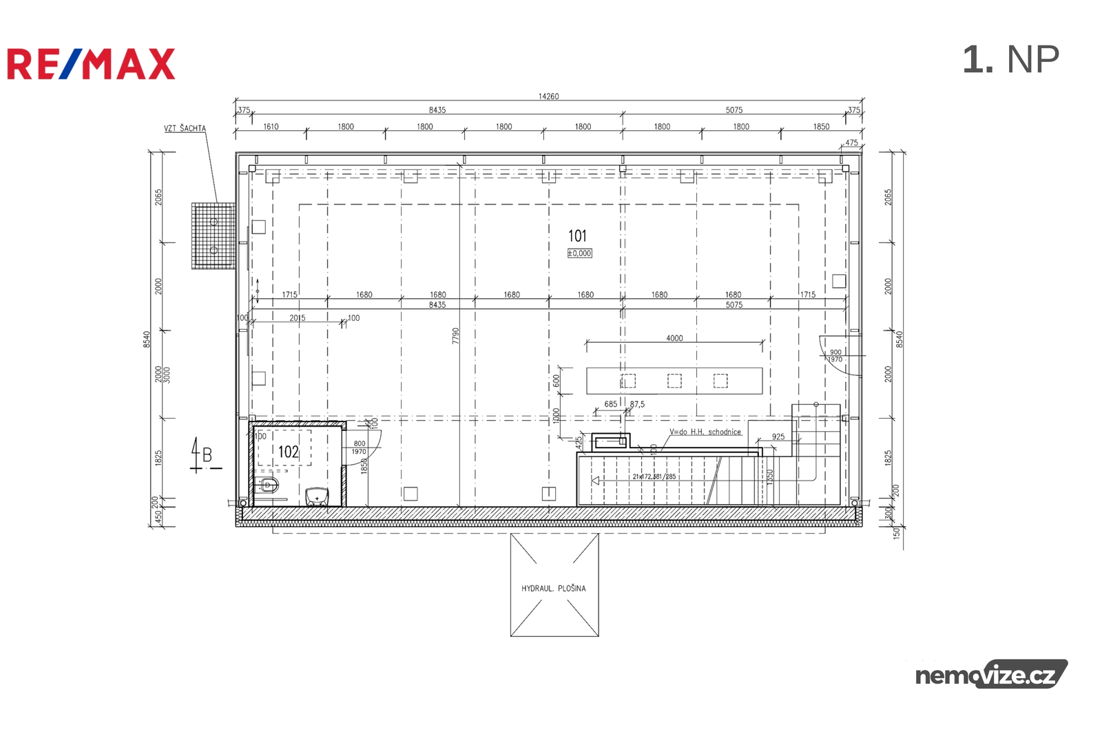
Přízemí o velikosti 121 m² v současné době slouží jako prodejna, disponuje velkými prosklenými výlohami orientovanými směrem k Jižní spojce a nabízí tak výbornou prezentaci značky nebo služeb.
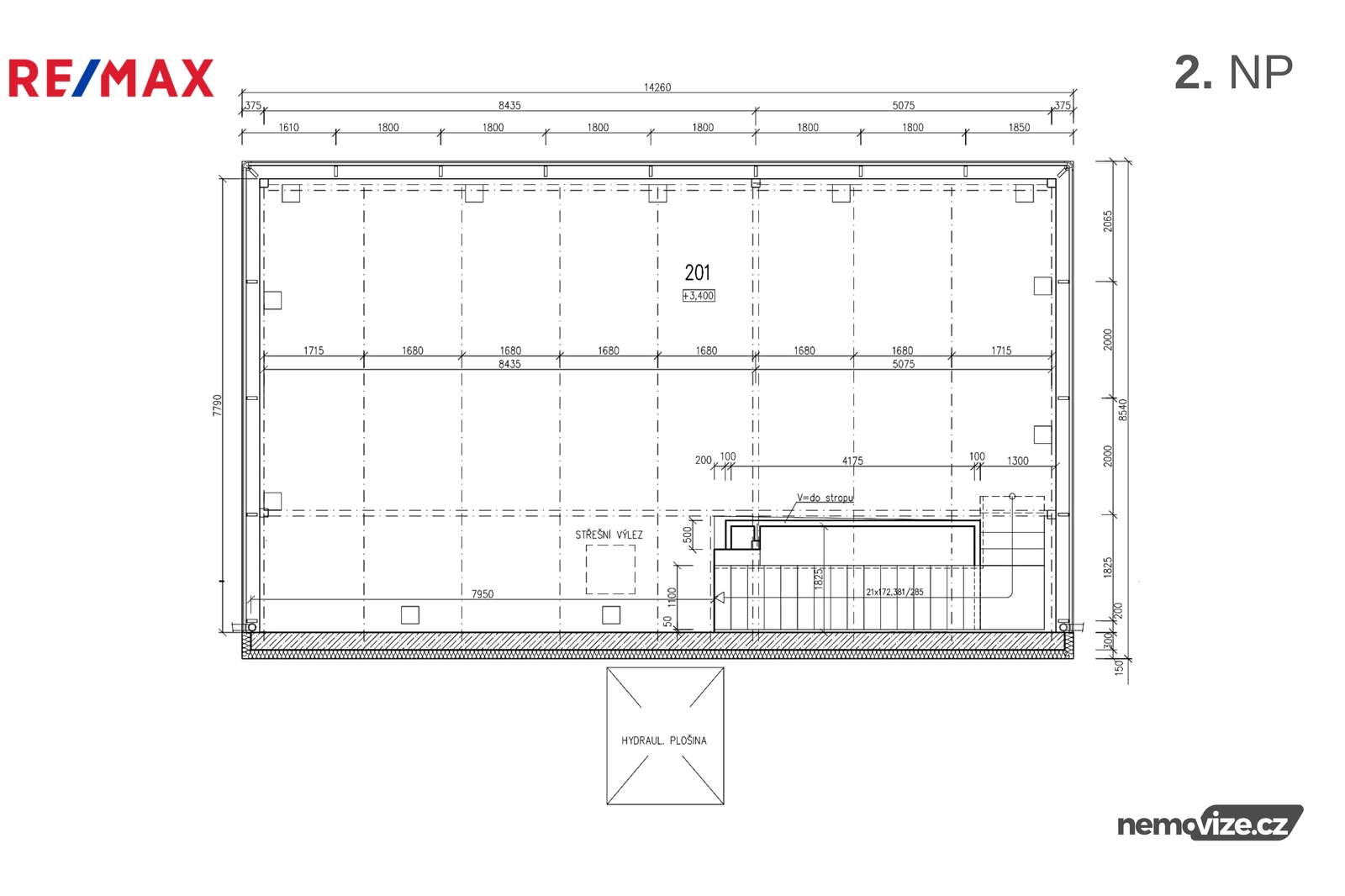
Druhé nadzemní podlaží, rovněž o výměře 121 m², je nyní využíváno jako další prodejní prostor, nicméně celý objekt lze dispozičně upravit dle potřeb nového nájemce. Prostory je možné využít jako showroom, sklad, kanceláře, servisní zázemí nebo je kombinovat podle konkrétního provozu.
V budově se nachází kompletní sociální a provozní zázemí, včetně dvou toalet, pisoáru, dvou umyvadel, kuchyňky a zázemí pro personál. Celý objekt je zkolaudován pro menší výrobu, což umožňuje provoz lehké výroby v kombinaci se skladem nebo obchodní činností.
Jedná se o velmi atraktivní, moderní a reprezentativní nemovitost na strategickém místě Prahy, která nabízí skvělou viditelnost, výbornou dopravní dostupnost a velkorysé parkování.
Objekt je ideální volbou pro firmy hledající funkční a flexibilní komerční prostory s výrazným marketingovým potenciálem přímo u Jižní spojky. Těšíme se na vás osobně!
Základní údaje
Dopravní spojení
Autobus, Vlak, MHD, Silnice, Dálnice
Elektřina
110 V, 230 V, 400 V
Kanalizace
Veřejná kanalizace
Zdroje vody
Veřejný vodovod
Konstrukce
Jiná
Inženýrské sítě
Telefon, Internet
Parkování
Parkoviště
ID nemovitosti
429137
Datum vložení
před 3 hodinami
Stav nemovitosti
Bezvadný
Plocha pozemku
344 m²
Plocha užitná
344 m²
Plocha zastavěná
121 m²
Energetická náročnost
G - Mimořádně nehospodárná
