Prodej rodinného domu 100 m², Dvorská, Plzeň
6 950 000 Kč
G
Popis nemovitosti
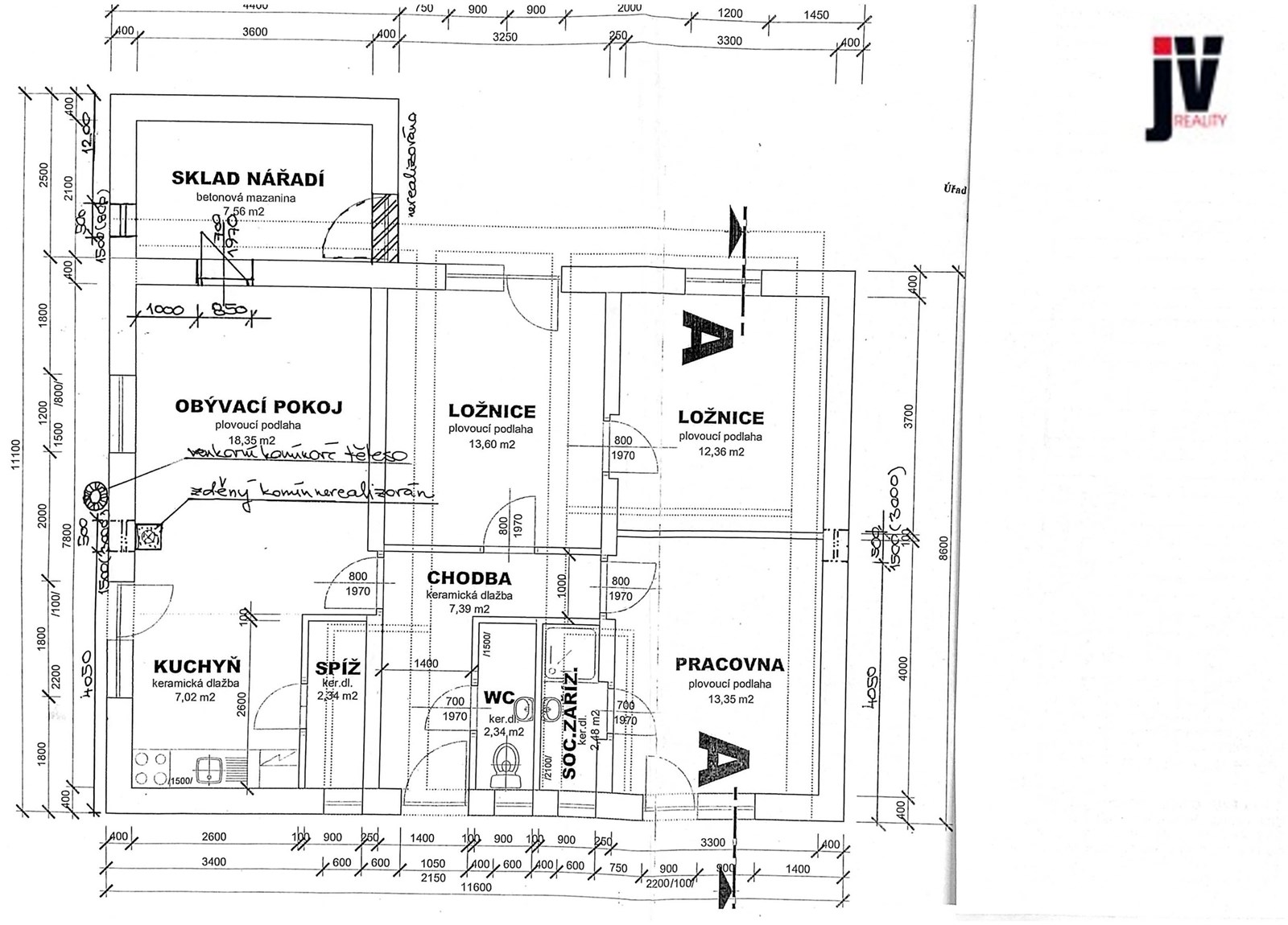
Nabízíme přízemní dům, typ bungalov, o vel. 5+kk, o zastavěné ploše 109m2 V současnosti dům disponuje 2 BJ se samostatnými vstupy, kdy 1.BJ je o vel. 1+kk a 2.BJ o vel. 4+kk. Dům byl zkolaudován v r. 2019. V současnosti na domě chybí finální omítka, některé vnitřní podhledy a kompletní zařízení pro kuchyni. Topení je napojeno na elektro kotel, ohřev vody zajišťuje el. bojler. Voda je z vlastního vrtu, kanalizace je svedena do jímky. V současnosti je vystaveno platné stavební povolení na přípojku vody a kanalizace, která vede v komunikaci u domu. V domě jsou 2 WC, 2 koupelny, z nichž jedna má přípravu pro sprchový kout. Možno využití půdního prostoru pro vybudování další místnosti. V obývací místnosti jsou krbová kamna. Doporučujeme vzhledem k dostupnosti z Plzně a celkovému stavu domu a přilehlé zahrady. V současnosti ještě není vyhotoven PENB, proto uvádíme nejhorší ukazatel. Součástí prodeje je i třetinový podíl na příjezdové cestě ze severní strany. Zajistíme kompletní finance pro vaši koupi.
Základní údaje
Elektřina
230 V
Kanalizace
Žumpa, septik
Zdroje vody
Studna vrtaná
Konstrukce
Zděná
Parkování
Vlastní parkovací stání
ID nemovitosti
97158925
Datum vložení
včera
Vlastnictví
soukromé
Stav nemovitosti
Bezvadný
Plocha pozemku
485 m²
Plocha obytná
100 m²
Plocha užitná
100 m²
Plocha zastavěná
109 m²
Energetická náročnost
G - Mimořádně nehospodárná
