Prodej rodinného domu 240 m², Prostřední, Lišany
7 590 000 Kč
G
Popis nemovitosti
Nabízíme k prodeji velmi prostorný, zrekonstruovaný rodinný dům 6+kk (možno i sedm, nebo osm + kk) v klidné části obce Lišany. Aktuálně probíhají dokončovací práce.
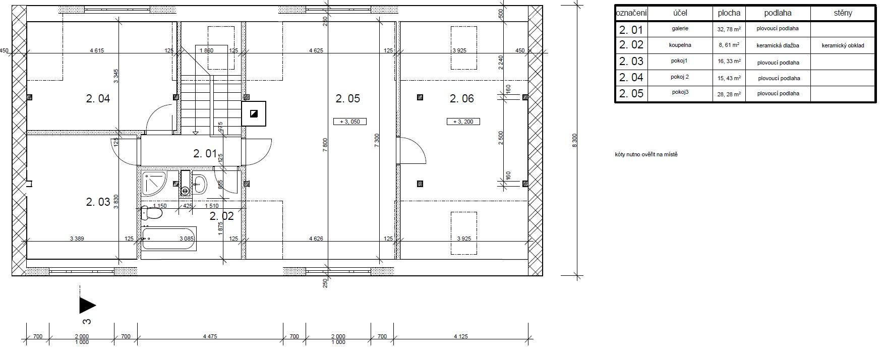
V přízemí domu nalezneme garáž (22 m2) se sekčními vraty na dálkové ovládání, vstupní chodbu, jídelnu, kuchyň, koupelnu s vanou a WC, obývací pokoj a ložnici. V patře dále nalezneme tři pokoje, z toho jeden velmi prostorný pokoj o výměře 28 m2, který může být v případě zájmu o dvougenerační bydlení využit jako obývací pokoj s kuchyňským koutem, dále koupelnu s podlahovým vytápěním, sprchovým koutem, vanou, WC, a dále prostornou půdu vhodnou i pro vestavbu dalšího pokoje.
V domě jsou kompletně nové rozvody vody, odpadů, elektřiny, plynu, topení. Kompletně nový krov včetně půdní vestavby a střešní krytiny, nový strop mezi 1 a 2.NP, dále také dům kompletně zateplen včetně nové fasády. Vytápění a ohřev domu řešeno novým plynovým kotlem se zásobníkem na teplou vodu. Obecní voda, odpady svedeny do kanalizace.
Čistá obytná plocha domu 181 m2 + 22 m2 půda + sklep s klenutým cihlovým stropem 15m2. Vjezd na pozemek bránou na dálkové ovládání. V ceně také včetně finální úpravy zahrady zahradní firmou. Doporučujeme osobní prohlídku. Financování možné hypotékou. Rádi vyřídíme.
Základní údaje
ID nemovitosti
N17846
Datum vložení
31. července 2025
Stav nemovitosti
Po rekonstrukci
Plocha celková
147 m²
Plocha pozemku
223 m²
Plocha obytná
181 m²
Plocha užitná
240 m²
Plocha výrobní
15 m²
Plocha zastavěná
147 m²
Energetická náročnost
G - Mimořádně nehospodárná
