Prodej stavební parcely 925 m², Olovnice

4 255 000 Kč

Nemovitost nabízí

Ing. Karolína Veinerová

KOMFORT REALITY s.r.o.
Osvoboz. pol. vězňů 3355, Kladno

Popis nemovitosti

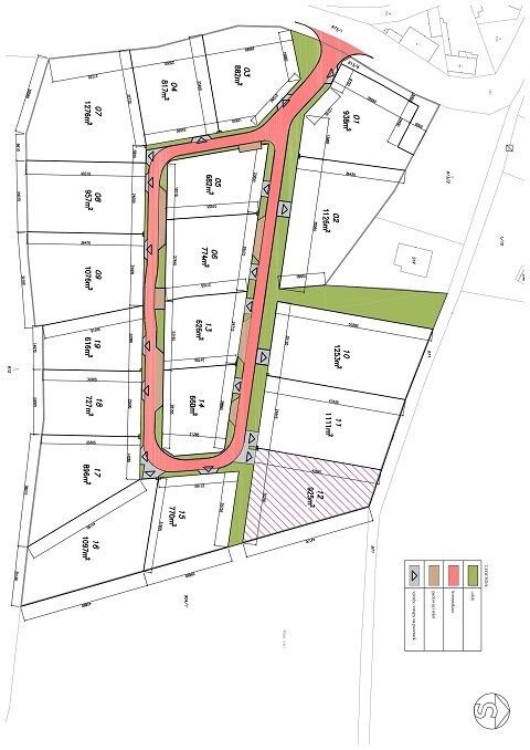
Nabízíme k prodeji stavební pozemek o výměře 925 m2 v obci Olovnice. Součástí technického vybavení pozemku je vodovodní přípojka, kanalizační přípojka, zakončené v šachtě na pozemku. Elektřina přivedena do elektroměrových pilířů postavených na hranici pozemku, součástí kupní ceny je jistič 3x25A. Koeficient zastavěnosti je 0,35, tedy 35 % z výměry pozemku. Garáž může být součástí RD nebo samostatně stojící, dům může mít 1 NP a podkroví, směr hřebene může být kolmý i rovnoběžný s komunikací. Po kolaudaci bude komunikace předána do majetku obce Olovnice, na základě uzavřené Plánovací smlouvy. Nabízíme optimální financování s možností porovnání úrokových sazeb a bonusů jednotlivých bank. Obec je velmi dobře dopravně dostupná, směr Praha, Slaný, Kralupy nad Vltavou, Kladno. Dopravní obslužnost je zajišťována autobusy a železnicí. V obci je mateřská škola, prodejna smíšeného zboží, restaurace, fotbalové hřiště, obecní úřad. V případě vašeho zájmu zašlu GP, územní rozhodnutí a další dokumentaci.

Základní údaje

Dopravní spojení
Autobus, Vlak, Silnice
ID nemovitosti
N00024
Datum vložení
9. března 2026
Cena
4 255 000 Kč
Plocha celková
925 m²
Plocha pozemku
925 m²

Poloha na mapě

Nemovitost nabízí

Ing. Karolína Veinerová

KOMFORT REALITY s.r.o.
Osvoboz. pol. vězňů 3355, Kladno