Prodej stavební parcely 1 911 m², Dětenice
2 500 000 Kč
včetně kompletního realitního, právního i hypotéčního servisu
Popis nemovitosti
Nabízíme k prodeji stavební pozemek, který je dle ÚP určený pro individuální bydlení v domech vesnického typu (sedlová střecha).
Inženýrské sítě (obecní kanalizace, obecní voda) jsou v komunikaci na hranici pozemku. V obci je základní občanská vybavenost a nachází se zde i turisticky hojně navštěvovaný zámek s krčmou.
Tento velký pozemek představuje výjimečnou příležitost pro ty, kteří hledají klidné místo pro rodinné bydlení se všemi výhodami venkovského života a zároveň dobrou dostupností do větších měst (22 km Mladá Boleslav, 20 km Jičín), ale i pro rekreační bydlení.
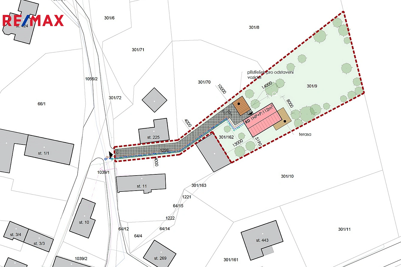
Ve fotogalerii uvádím vizualizace možného umístění stavby na pozemku a vedení sítí a také vizualizace jednoho z mnoha možných podob rodinného domu. Současní majitelé pozemku jsou ochotni poskytnout součinnost s realizací elektropřípojky.
Jedná se o pozemek 301/9 a 1220 k k.ú. Dětenice.
V případě zájmu o více informací či prohlídku mě neváhejte kontaktovat.
Základní údaje
Dopravní spojení
Autobus, Vlak, Silnice
Kanalizace
Veřejná kanalizace
Zdroje vody
Veřejný vodovod
ID nemovitosti
408074
Datum vložení
20. února 2025
Plocha celková
1 911 m²
Plocha pozemku
1 911 m²
Plocha užitná
1 911 m²
