Prodej stavební parcely 697 m², Choťánky
5 500 000 Kč
včetně DPH, včetně poplatků, včetně provize, včetně právního servisu, cena k jednání
Popis nemovitosti
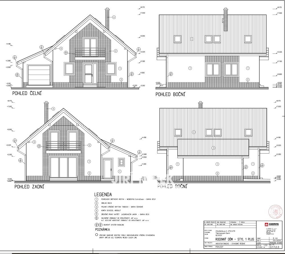
Nabízím k prodeji exkluzivní pozemek určený pro stavbu RD v obci Choťánky u Poděbrad. Rovinatá parcela se nachází v nově vznikající zástavbě rodinných domů a nabízí rezidenční možnost bydlení s vynikající dostupností do Prahy v sousedství lázeňského města Poděbrady. Elektřina, vodovod a kanalizace jsou na hranici pozemku. Pokud hledáte klidné bydlení v blízkosti města a dálnice a přitom nerušící, je tato nabídka určena právě vám. Velká devíza zde je hotový projekt na rodinný dům, čímž pro nového majitele odpadá veškerá starost s vyřizováním stavby. Pro více informací zavolejte nebo napište
Základní údaje
Dopravní spojení
Silnice, Dálnice
Elektřina
230 V, 400 V
Kanalizace
Veřejná kanalizace
Zdroje vody
Veřejný vodovod
Příjezdy
Asfalt
ID nemovitosti
123
Datum vložení
před 6 hodinami
Plocha pozemku
697 m²
