Prodej obchodu 1 280 m², Mírové náměstí 67, Kadaň
15 600 000 Kč
D
Popis nemovitosti
Nabízíme k prodeji patrovou obchodní budovu situovanou v samotném centru města Kadaň.
Objekt je udržovaný a ve velmi dobrém technickém stavu, připravený k okamžitému využití bez nutnosti dalších investic.
Přízemí :
Jedna část je v současné době využívána jako obchodní prostor a sklady, druhá část má samostatný vstup a je dlouhodobě pronajata stabilnímu nájemci – pobočce České spořitelny, což činí tuto nemovitost atraktivní i z investičního hlediska.
Patro:
Celé patro objektu slouží jako další obchodní prostor, vhodný například pro prodejnu, kanceláře, služby nebo kombinaci podnikatelských aktivit. Podlahy ve všech prostorách tvoří keramická dlažba.
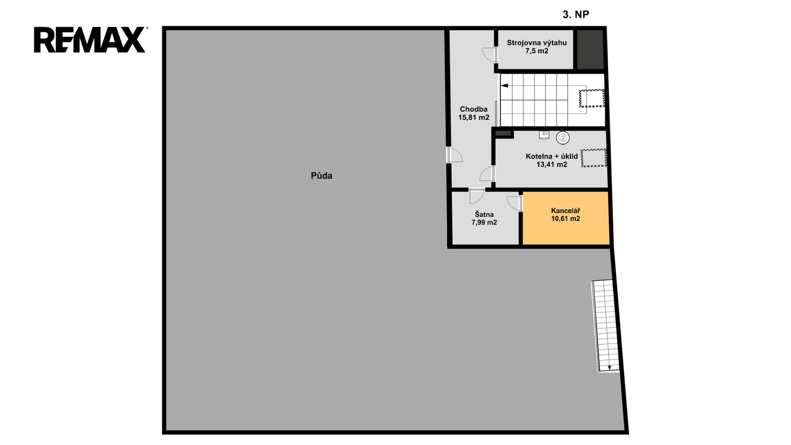
Podkroví:
V podkroví se nachází dvě samostatné místnosti, které jsou vhodné k využití jako kanceláře nebo další sklady.
K dispozici je také velký půdní prostor.
Budova je částečně podsklepena. Sklepní prostory jsou suché, čisté a mají klenuté stropy, což zvyšuje jejich atraktivitu pro skladování či další využití.
Hlavní výhody nemovitosti:
- lukrativní poloha v centru města
- udržovaný objekt vhodný k okamžitému užívání bez nutnosti rekonstrukce
- výtah a klimatizace
- možnost kombinace vlastního podnikání a stabilního nájemního výnosu
- rozsáhlé skladové prostory (sklepy i půda)
Nemovitost nabízí široké možnosti využití – obchod, služby, kanceláře i investici s pravidelným příjmem.
Pro více informací nebo domluvení prohlídky neváhejte kontaktovat makléře nabídky.
Výměry jsou uvedeny pouze orientačně. Prodávající si vyhrazuje právo vybrat kupujícího na základě jím zvolených kritérií.
Základní údaje
Dopravní spojení
Autobus, Vlak, MHD, Silnice
Elektřina
230 V
Kanalizace
Veřejná kanalizace
Zdroje vody
Veřejný vodovod
Konstrukce
Jiná
Inženýrské sítě
Internet
ID nemovitosti
429418
Datum vložení
22. prosince 2025
Cena
15 600 000 Kč
Stav nemovitosti
Bezvadný
Plocha pozemku
710 m²
Plocha obytná
1 280 m²
Plocha užitná
1 280 m²
Plocha zastavěná
466 m²
Energetická náročnost
D - Méně úsporná
