Prodej bytu 3+1 80 m², Černokostelecká 1807, Praha
10 800 000 Kč
C
Popis nemovitosti
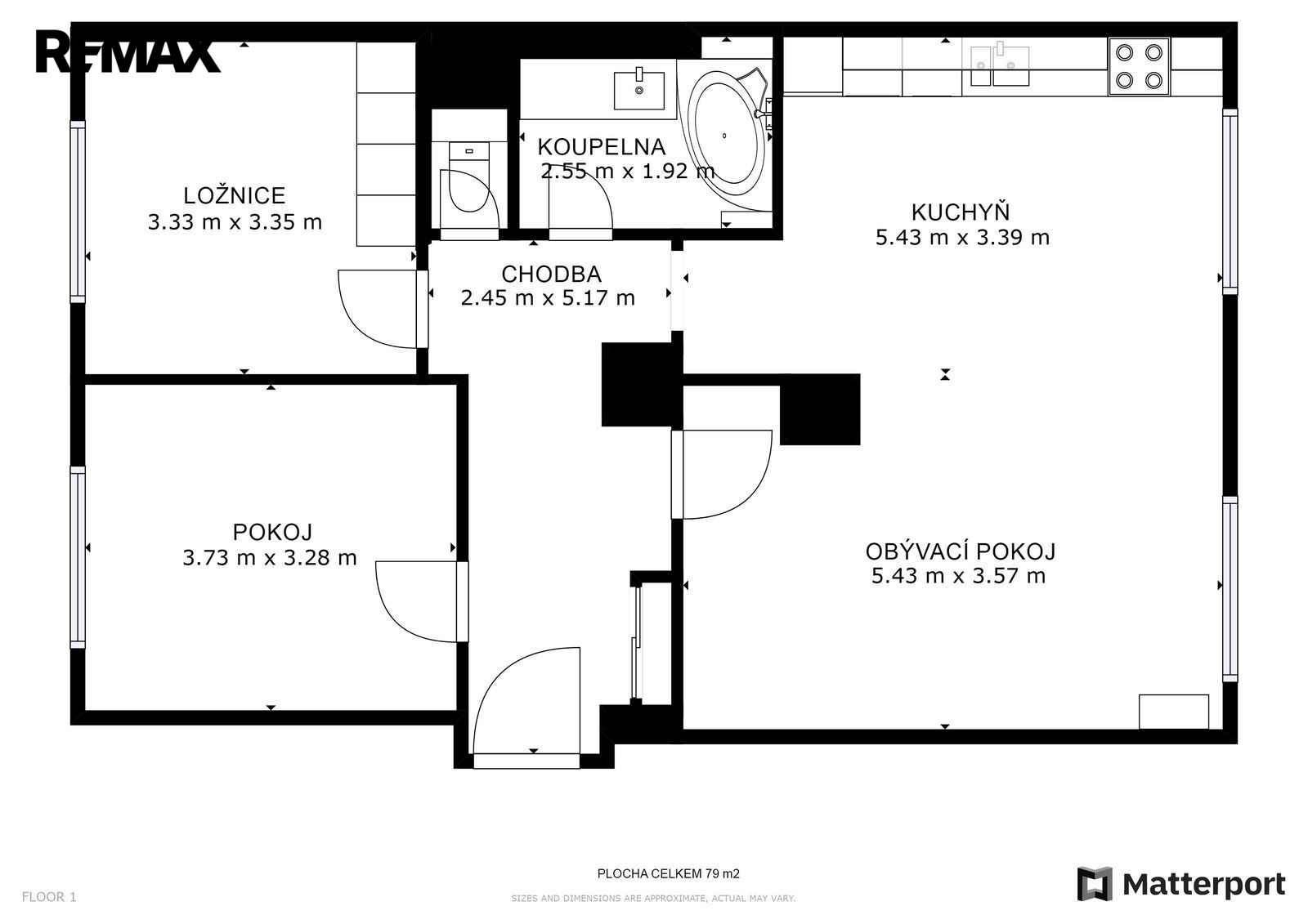
Exkluzivně nabízíme byt nacházející se v ulici Černokostelecká o dispozici 3+1 (3+kk), na první pohled na rušném místě s překvapivě klidným a rozhlehlým vnitroblokem.
K bytu náleží sklep, který je zabezpečen dveřmi, ale i bezpečnostní mříží. Dále v podzemí nalezneme i prádelnu a sušárnu, která je stále plně funkční.
Pro rodiny s dětmi, anebo pro cyklisty je zde i praktický prostor „kočárkárna/kolárna" pro uložení kočárků a kol.
Byt se nachází v 1. nadzemním podlaží. V celem bytě jsou plastová okna, a taktéž praktické venkovní rolety pro odhlučnění a izolace v teplých, či naopak chladných období.
Dispozice bytu 3+1 nabízí vstupní halu, samostatnou kuchyň s jídelnou. Nebo může se změnit na prostorný obývací pokoj s přímým možným průchodem dveřmi do chodby.
Koupelna je moderní, vybavena vanou, větším umyvadlem, ale také dostatkem úložných prostor, vedle nichž je i místo přímo pro pračku, nebo sušičku. Toaleta je samostatná.
Ložnice je orientovaná na sever, směrem do klidného vnitrobloku a jelikož je taktéž vybavena roletou.
Vedle ložnice se nachází další pokoj, který může sloužit pro děti, nabo jako pracovna.
Nad celým bytem provedeno precizní odhlučnění stropu.
Výhodou je výborná dopravní dostupnost a blízkost MHD. Byt má velmi výhodné dopravní spojení s centrem Prahy- přímo před domem je zastávka tramvají 16 a 19 (Limuzská) a autobusů č.177, 188 a 195. Metro Skalka je pouhé 2 stanice autobusem. Prodávající si vyhrazuje právo vybrat kupujícího na základě jím zvolených kritérií.
Základní údaje
Dopravní spojení
MHD
Elektřina
230 V
Kanalizace
Veřejná kanalizace
Konstrukce
Jiná
Inženýrské sítě
Internet
ID nemovitosti
428125
Datum vložení
26. listopadu 2025
Vlastnictví
soukromé
Stav nemovitosti
Bezvadný
Plocha pozemku
80 m²
Plocha obytná
80 m²
Plocha užitná
80 m²
Energetická náročnost
C - Úsporná
