Prodej bytu 3+1 70 m², Tř. 1. máje, Přeštice

5 990 000 Kč G

Nemovitost nabízí

NEXT REALITY GROUP a.s.

NEXT REALITY GROUP a.s.
Olbrachtova 1980/5, Praha

Popis nemovitosti

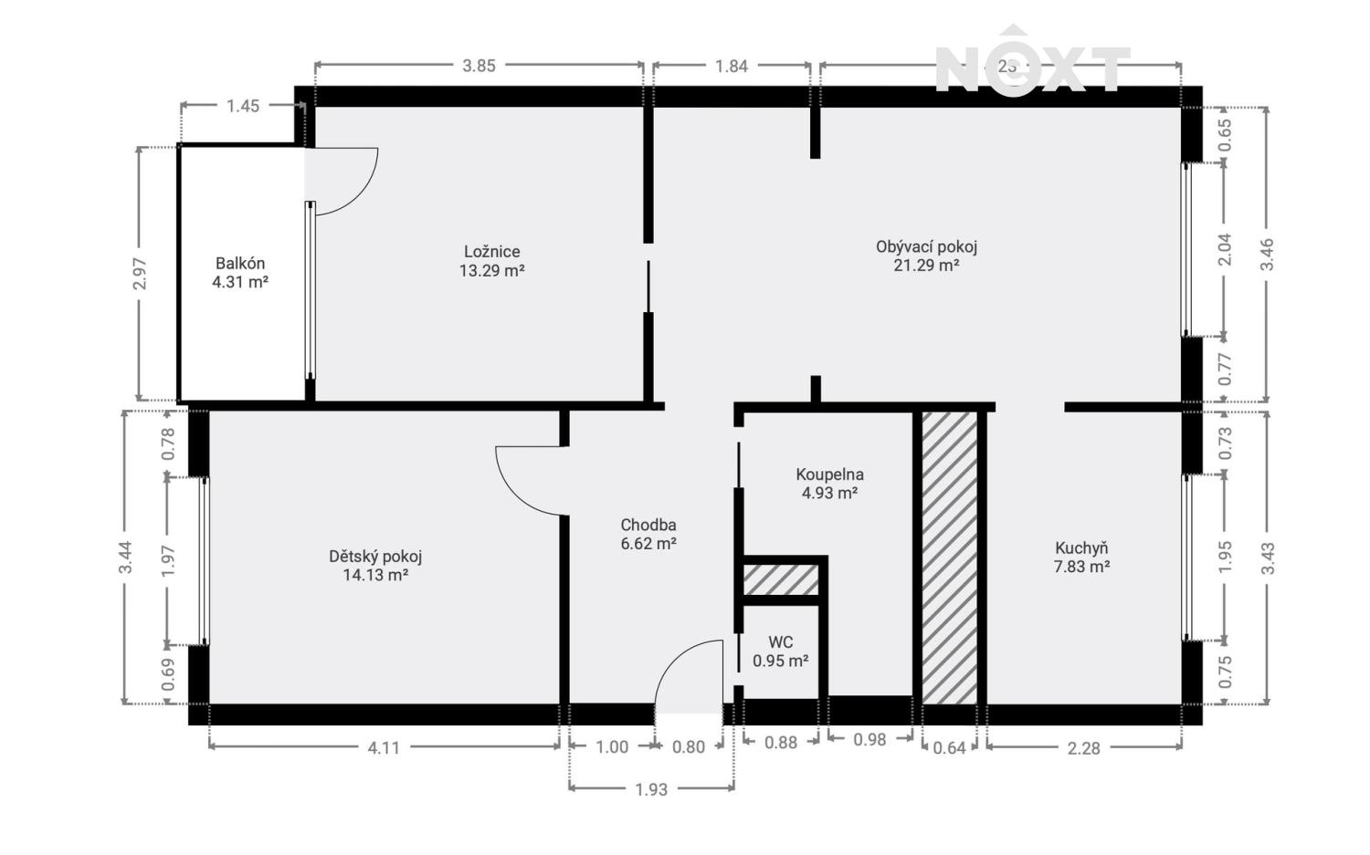
Slunný byt 3+1 v klidné části Přeštic Hledáte pohodové bydlení kousek od Plzně, ale zároveň s klidem menšího města? Pak vás určitě zaujme tento prostorný byt 3+1 v oblíbené lokalitě Přeštic. Byt se nachází ve třetím patře panelového domu a nabízí promyšlené dispoziční řešení s dostatkem místa pro celou rodinu. Najdete zde velký obývací pokoj, dvě samostatné ložnice, kuchyni s jídelním koutem, koupelnu a samostatné WC. K bytu patří také sklepní kóje a lodžie, kde si můžete vychutnat ranní kávu. Lokalita je ideální pro ty, kteří chtějí mít všechno po ruce – školu, školku, obchody, lékaře i sportovní areály. Do Plzně se dostanete autem nebo vlakem během pár minut. Parkování je možné přímo u domu. Byt působí velmi útulně a je skvělou volbou jak pro rodinné bydlení, tak jako investice. Dokončení prodeje bude uskutečněno až poté, co si současní majitelé zajistí nové bydlení. V případě jakýkoliv dotazů mě neváhejte kontaktovat. Uvedené výměry jsou orientační. Veškeré zveřejněné údaje obsažené v tomto inzerátu mají pouze informativní charakter a nejsou nabídkou ve smyslu § 1731 nebo § 1732 občanského zákoníku, ani se nejedná o veřejný příslib dle § 1733 občanského zákoníku. Pro komunikaci uvádějte evidenční číslo zakázky N114702.

Základní údaje

ID nemovitosti
N114702
Datum vložení
před měsícem
Vlastnictví
soukromé
Stav nemovitosti
Dobrý
Plocha užitná
70 m²
Patro
3.
Energetická náročnost
G - Mimořádně nehospodárná

Poloha na mapě

Nemovitost nabízí

NEXT REALITY GROUP a.s.

NEXT REALITY GROUP a.s.
Olbrachtova 1980/5, Praha