Prodej bytu 3+1 72 m², Nad strouhou, Praha
8 290 000 Kč
G
včetně poplatků, včetně provize, včetně právního servisu
Popis nemovitosti
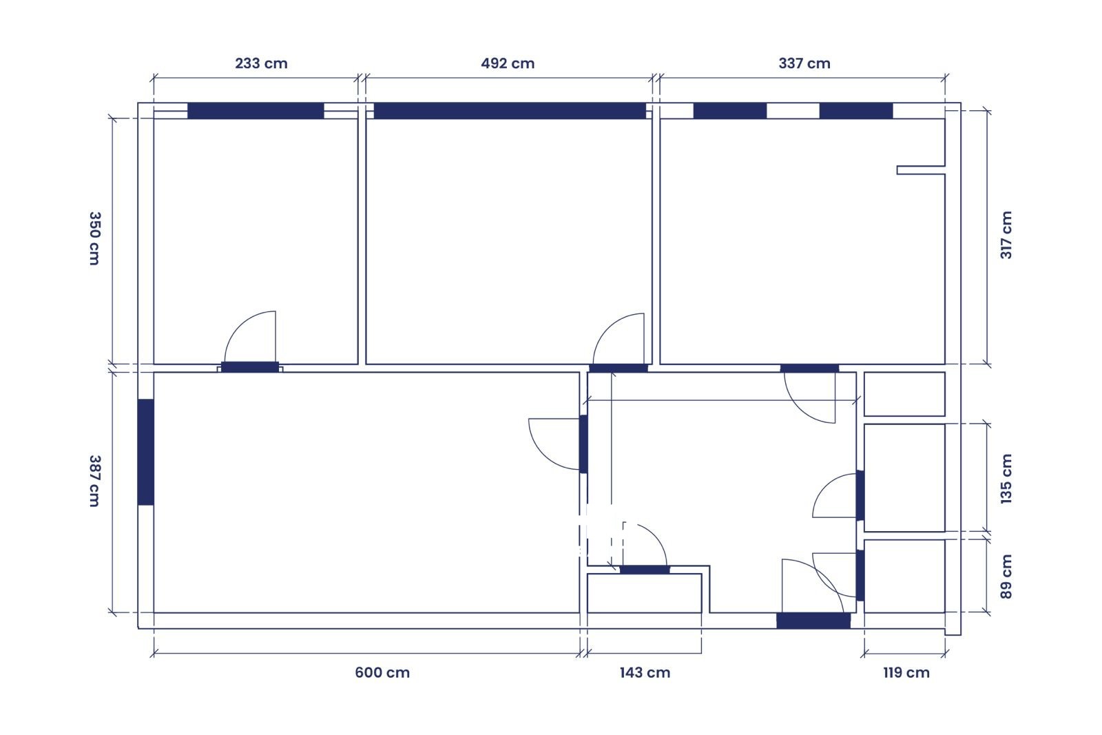
Prodej prostorného bytu 3+1 (71,5 m2) v původním stavu – ideální příležitost k moderní rekonstrukciNabízíme k prodeji světlý a prostorný byt o dispozici 3+1 a podlahové ploše 71,5 m2, který se nachází ve 3. nadzemním podlaží zatepleného bytového domu s novou fasádou, plastovými okny a výtahem.K bytu náleží také sklepní koje.Byt je v původním, udržovaném stavu, což představuje skvělou příležitost pro ty, kteří si chtějí bydlení upravit podle vlastních představ.Současně je byt řešen jako 3+1, nicméně pro lepší představu o možnostech prostoru jsme připravili vizualizace, které ukazují, jak by bylo možné byt propojením obývacího pokoje s kuchyní upravit na moderní 3+kk.V tomto návrhu by na místě současné kuchyně vznikla komfortní a prostorná ložnice.Díky velkorysé výměře obývacího pokoje (24 m2) se ale nabízí i další varianta – úprava na 4+kk, kdy by vznikly tři samostatné ložnice a prostorný obývací pokoj s kuchyňským koutem. Tento byt tak nabízí neomezené možnosti uspořádání, ať už hledáte praktické rodinné bydlení, nebo prostorný byt s velkým společenským prostorem.Celý byt působí vzdušně a prosvětleně, s dostatkem denního světla po celý den.Dům prošel kompletní revitalizací – zateplení, nová fasáda, plastová okna, moderní vstup na čipový systém a nový výtah.Byt je v družstevním vlastnictví se zcela splacenou anuitou, tedy bez jakýchkoli dalších finančních závazků vůči družstvu.Měsíční náklady (fond oprav a správa domu): 2 590 Kč.Lokalita a občanská vybavenostByt se nachází na velmi klidné adrese Nad Strouhou, Praha 4 – Braník, v příjemné zeleni s výbornou dopravní dostupností i občanskou vybaveností.Zastávka MHD U Staré pošty (linky 106, 196, 197, 170, 121) je jen pár minut chůze, odkud se během 10 minut dostanete na metro C – Budějovická nebo Kačerov, případně tramvají na Nádraží Braník s přímým spojením do centra.Autem jste na Jižní spojce nebo Barrandovském mostě do 3 minut.V okolí najdete supermarket Albert, lékárnu, poštu, základní i mateřskou školu a několik restaurací a kaváren. Pro aktivní odpočinek je ideální Branické nábřeží, cyklostezka A2 podél Vltavy, nebo oblíbený areál Hamr Braník s tenisovými kurty, fitness centrem a restaurací.Milovníci přírody ocení i Kunratický les a modřanskou rokli, které jsou v dojezdové vzdálenosti pár minut.Shrnutí:• aktuální dispozice: 3+1, možnost úpravy na 3+kk nebo 4+kk• 71,5 m2 + sklepní koje• 3. NP s výtahem• dům po kompletní rekonstrukci• vstup na čipový systém• družstevní vlastnictví, anuita splacena• měsíční náklady: 2 590 Kč (fond oprav + správa domu)• byt v původním stavu – ideální k rekonstrukci• vizualizace možného řešení dispozic součástí prezentace• vhodné i pro vícečlennou rodinu díky promyšleným dispozicím.V případě zájmu mě neváhejte kontaktovat – velmi ráda vás bytem osobně provedu a zodpovím všechny vaše dotazy.Majitel si vyhrazuje právo vybrat kupujícího podle vlastních kritérií.
Základní údaje
Dopravní spojení
Autobus, Vlak, MHD, Dálnice
Kanalizace
Veřejná kanalizace
Zdroje vody
Veřejný vodovod
Konstrukce
Panelová
Inženýrské sítě
Internet
ID nemovitosti
195
Datum vložení
před měsícem
Vlastnictví
družstevní
Stav nemovitosti
K rekonstrukci
Plocha užitná
72 m²
Patro
2.
Energetická náročnost
G - Mimořádně nehospodárná
