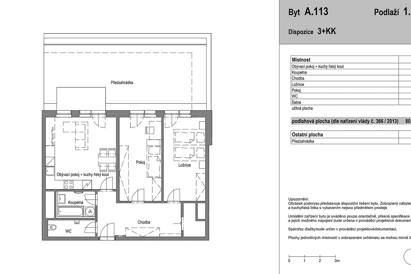
Prodej bytu 3+kk 130 m², Hůry
8 990 000 Kč
B
Prodej přímo od majitele, neplatí se provize RK
Zlatý Roh s.r.o.
Krajinská 244/17, České Budějovice
Popis nemovitosti
Poslední 3+kk se zahradou. Stavba je oficiálně zahájena (1.12.2025) - kolaudace a předání v roce 2028. Nabízíme spolehlivost v rámci generálních partnerů jako STRABAG a ČSOB. Rezidence u Sv. Eliáše je nový rezidenční projekt situovaný v obci Hůry, která leží zhruba 5 kilometrů od centra Českých Budějovic. Lokalita je umístěna mimo hlavní zástavbu. Projekt těží z výhod strategické polohy – v těsné blízkosti hlavních silničních tahů vedoucích do Českých Budějovic i na dálnici D3, která je dostupná pár minut autem. Díky tomu je možné pohodlně cestovat nejen do krajského centra, ale i do dalších částí Jihočeského kraje.
V rámci projektu vznikne celkem 191 bytových jednotek o různých dispozicích od 1+kk až po 4+kk. Byty budou umístěné ve třech budovách, což umožní dostatečné osvětlení a prostor. K bytům bude náležet sklepní kóje a vlastní parkovací stání, toto příslušenství se platí nad rámec cenu za jednotku. Součástí většiny bytů bude balkon, terasa nebo předzahrádka. Projekt je navržen tak, aby splnil potřeby širokého spektra obyvatel – jednotlivců, rodin s dětmi i seniorů.
Součástí rezidence bude nově postavená základní škola s pěti třídami, která disponuje vlastní jídelnou a moderní tělocvičnou. Tělocvična bude sloužit nejen školákům, ale i veřejnosti v rámci sportovních a volnočasových aktivit.
V docházkové vzdálenosti od rezidence se nachází mateřská škola, která usnadní zajištění předškolní péče. Kromě školních zařízení je součástí projektu i zdravotnické zařízení s personálem.
Projekt je doplněn o veřejné zelené plochy, parky a dětská hřiště, které budou přístupné všem obyvatelům rezidence. Pro pěší a kočárky jsou plánovány zpevněné cesty, které zajistí bezpečný pohyb uvnitř areálu i propojení s okolní přírodou. Cyklotrasa vede do centra Českých Budějovic, což umožňuje pohodlnou alternativu dopravy.
Dopravní dostupnost je jedním z klíčových aspektů projektu. Velkou výhodou je nájezd na dálnici D3. Stibus jenž bude propojovat projekt s MHD je situován přímo v areálu, což usnadní dojíždění do města bez nutnosti auta. Automobilová doprava do centra Českých Budějovic zabere přibližně 9 minut do centra, do Hluboké nad Vltavou 12 minut a do Třeboně zhruba 17 minut. Český Krumlov 25 minut autem a resorty na Lipně 1h.
Technické řešení bytů a jejich dispozice odpovídají současným požadavkům na komfort a efektivitu využití prostoru. Výstavba bude probíhat s důrazem na kvalitu materiálů a standardů tak, aby splnila potřeby moderního bydlení.
Projekt nabízí kombinaci cenově dostupného bydlení s občanskou vybaveností a dobrou dopravní dostupností, a to v lokalitě, která umožňuje kontakt s přírodou. Díky tomu je vhodná pro rodiny, jednotlivce i seniory, kteří hledají vyvážené a funkční bydlení v bezprostřední blízkosti Českých Budějovic.
Nabízíme také 3 varianty financování a výkonného finančního partnera, který je schopen zajistit hypotéku v různých podmínkách. Máme také výhodný program pro větší investory.
K nastěhování: 1.8.2028
Základní údaje
Dopravní spojení
Autobus, Silnice, Dálnice
Elektřina
230 V
Kanalizace
Veřejná kanalizace
Zdroje vody
Veřejný vodovod
Způsoby vytápění
Ústřední - plynové
Konstrukce
Zděná
Balkóny
Balkon
Druhy bytů
Klasický
Inženýrské sítě
Plyn
Parkování
Vlastní parkovací stání
Příjezdy
Beton, Dlažba, Asfalt
Vytápění podrobnosti
Plyn
ID nemovitosti
5
Datum vložení
18. srpna 2025
Vlastnictví
soukromé
Stav nemovitosti
Novostavba
Plocha pozemku
50 m²
Plocha užitná
130 m²
Energetická náročnost
B - Velmi úsporná
Součást developerského projektu Rezidence u Sv. Eliáše
Prodáno 94/191 jednotek. Stavba je oficiálně zahájena (1.12.2025) - kolaudace a předání v roce 2028. Nabízíme spolehlivost v rámci generálních partnerů jako STRABAG, ČSOB a technický garant. Rezidence u Sv. Eliáše je nový rezidenční projekt situovaný v obci Hůry, která leží zhruba 5 kilometrů od centra Českých Budějovic. Lokalita je umístěna mimo hlavní zástavbu. Projekt těží z výhod strategické polohy – v těsné blízkosti hlavních silničních tahů vedoucích do Českých Budějovic i na dálnici D3, která...
více informací
Poloha na mapě
Zlatý Roh s.r.o.
Krajinská 244/17, České Budějovice
