Prodej bytu 2+1 70 m², Ořechová 1223, Plzeň
4 795 000 Kč
F
Cena je včetně provize, právního servisu i poplatku na KN.
Popis nemovitosti
Hledáte atypický a útulný byt na skvělé adrese?
Pak by tato nabídka mohla být právě pro vás...
Nabízíme k prodeji byt 2 + 1 ( 3kk ) v ulici Ořechová, část obce Východní Předměstí, Plzeň. Tato nemovitost se nachází ve druhém patře cihlového domu bez výtahu, který je ve velmi dobrém stavu. Jedná se o přístavbu domu z roku 2005, kdy bylo vydáno kolaudační rozhodnutí.
Mezonetový byt v osobním vlastnictví je prostorný a nabízí komfortní bydlení v atraktivní lokalitě. Celková plocha bytu, což je cca 70 m2, je vhodná pro pohodlný životní styl.
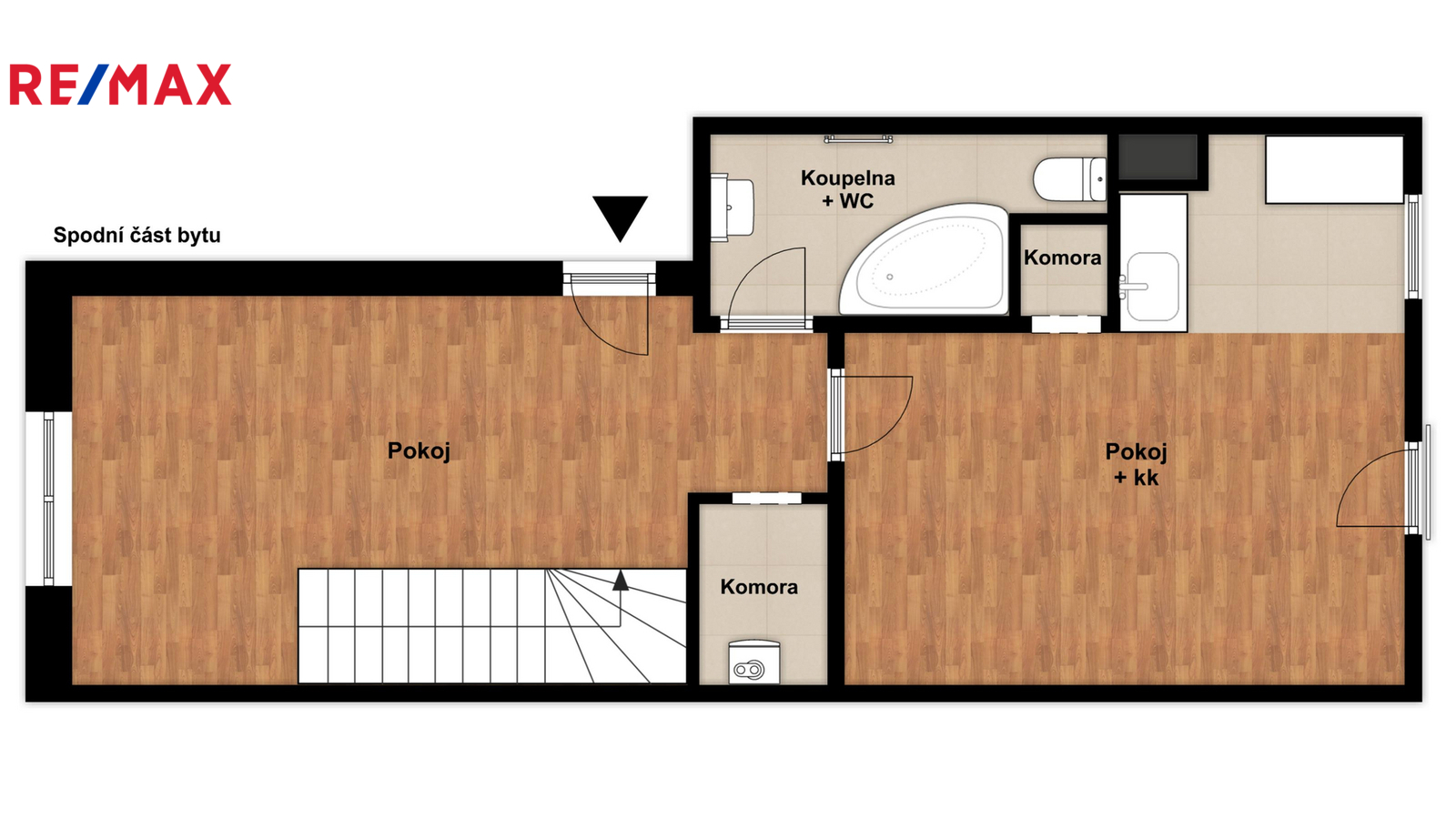
Byt sestává z prostorné kuchyně, obývacího pokoje, koupelny s WC, spíže, komory a ložnice, která je umístěna v patře viz přiložené orientační plánky.
K bytu přináleží sklep a možnost využívat společné prostory jako dílnu, kolárnu a část zahrady.
Vytápění bytu i ohřev vody zajišťuje plynový kotel, umístěný v komoře.
Fond oprav činí 699 Kč měsíčně.
Dům je celkově výborně udržovaný
V blízkosti domu se nachází kompletní síť obchodů a služeb, mladá rodina jistě ocení MŠ, ZŠ i několik dětských hřišť v okolí. Nedaleko se nachází i plavecký bazén a park Homolka.
Zastávka MHD je 200 m od domu.
Pokud máte zájem tento byt navštívit nebo by vás zajímaly další informace, neváhejte se obrátit na níže uvedené kontakty.
Budu se těšit na prohlídce bytu :-)
Prodávající si vyhrazuje právo vybrat kupujícího na základě jím zvolených kritérií.
Základní údaje
Dopravní spojení
Autobus, Vlak, MHD, Silnice, Dálnice
Elektřina
230 V
Kanalizace
Veřejná kanalizace
Zdroje vody
Veřejný vodovod
Konstrukce
Jiná
Druhy bytů
Mezonet
ID nemovitosti
431493
Datum vložení
31. ledna 2026
Cena
4 795 000 Kč
Vlastnictví
soukromé
Stav nemovitosti
Bezvadný
Plocha pozemku
70 m²
Plocha obytná
70 m²
Plocha užitná
70 m²
Plocha zastavěná
132 m²
Patro
2.
Energetická náročnost
F - Velmi nehospodárná
